物件概要
| 初期費用 | 敷金:0ヶ月、礼金:1ヶ月、翌月分賃料等:1ヶ月分、鍵交換代:33,000円、2年間火災保険料:20,000円目安(別途、保証料と当月分日割賃料等) |
|---|---|
| 月額合計費用 | 賃料:100,000円、共益費:4,000円、24時間サポート:880円、町費:200円 ◆合計:105,080円 |
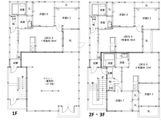
| 間取内訳 | LDK10.8畳 / 洋室4.7畳 / 洋室4.3畳 |
| 建物構造 | 木造 |
| 所在階 | 地上3階 3階部分 |
| 駐車場 | 無 |
| 設備 | エアコン、システムキッチン、給湯、浴室乾燥機、追焚機能、シャワー、トイレ、温水洗浄便座、バス・トイレ別、独立洗面脱衣所、室内洗濯機置場、インターネット対応、光ファイバー、インターネット使い放題、オートロック、TVモニタ付きインターホン、収納スペース、シューズボックス、フローリング、全居室フローリング、プロパンガス |
| 現況 | 未完成 |
| 引渡時期 | 予定 2025年06月上旬 |
| 契約区分 | 普通借家契約 |
| 契約期間 | 2年 |
| 取引態様 | 媒介 |
| 特記事項 | 二人入居可、角部屋、最上階、ペット相談可、小型犬相談可、猫相談可 ※【ペット備考】ペット1匹まで小型犬・猫可(礼金1ヵ月プラス) ※掲載写真と現況が異なる場合は、現況を優先します。 |
最終更新日 2025.05.24
福岡でのお部屋探しならりりほーむにお任せください。こちらのアールユー薬院ももちろん仲介手数料0円です。りりほーむ経由でお部屋をお申し込みいただきますと、全物件の仲介手数料(家賃1ヶ月分+税)が無料♪初期費用が安くなる率、99.8%の実績をお客様の目でお確かめください。フリーダイヤル、LINE、メールなどから24時間いつでもご連絡ください。りりほーむはお客様に寄り添い、迅速・丁寧な対応を心掛けております。アールユー薬院のお申し込みも24時間いつでも可能ですので、お気軽にお問い合わせください。福岡や北九州の仲介手数料無料で初期費用が安い不動産会社ならりりほーむがおすすめです。





















